0577-67988558

产品中心

PRODUCT DISPLAY

联系方式 / CONTACT

地址:浙江省永嘉县瓯北镇东瓯泵阀园区 手机:0577-67988558 手机:15958793562 陈总 邮箱:2569887415@qq.com

罗浮阀门集团浙江西高泵阀有限公司

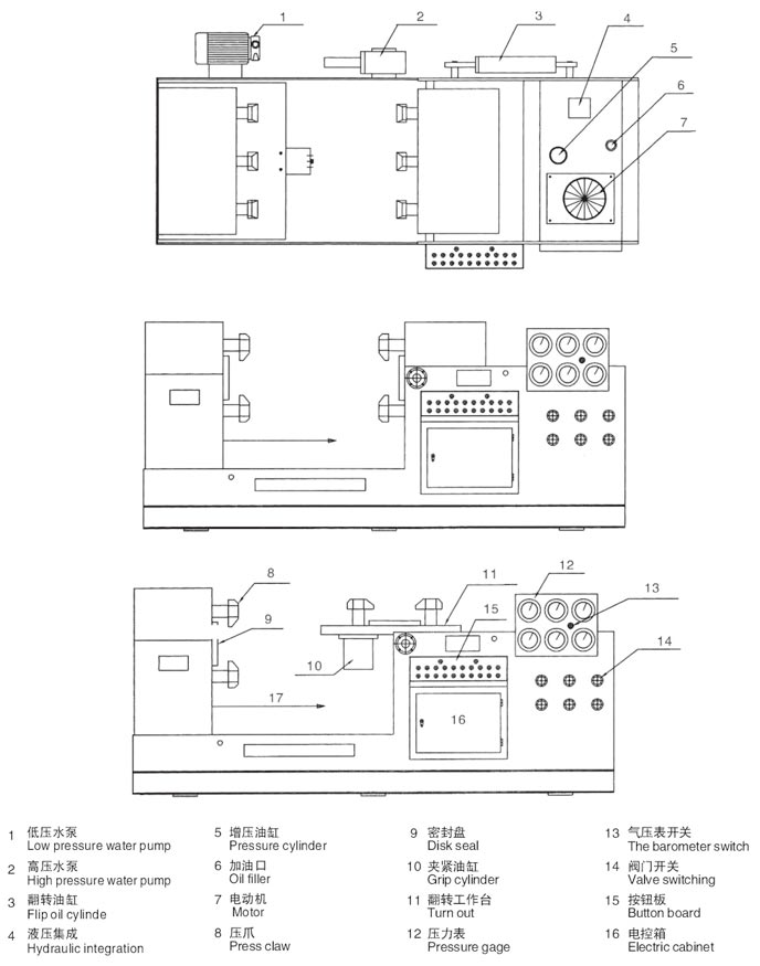
阀门强度试压机YFA-F型

产品参数

阀门强度试压机是把阀门接入已安装固定好的试验台相应闭口,后闭阀加压至试验压力进行阀门壳体强度试验,阀门强度试验压力是公称压力的1.1倍的整数值。输送剧毒流体介质、有毒介质、可燃介质管道的阀门;输送设计压力>1MPa或设计压力≤1MPa且设计温度≤-29℃或>186℃的非可燃介质、无毒介质管道的阀门都应逐个进行壳体液压试验,不合格者不得使用。罗浮阀门集团浙江西高泵阀有限公司建议阀门生产厂家每台必须做阀门强度试压,用户单位抽样检查阀门强度试压。

YFA-F型阀门强度试压机的试验介质采用洁净水或煤油。对于奥氏不锈钢阀门,水的氯含量不得超过25PPm。

阀门液压测试台

阀门强度试压机的使用指南

阀门液压测试台的外形结构示意图:

阀门液压测试台

1.气体阀门强度试压

将被测阀门半开,开启控制模块上“下盲板阀进气阀”、“下盲板进气保压阀”,气体进入阀门,待其充满后,可观察到“下盲板气压表”指示在设定压力位置,关闭控制模块上“下盲板进气阀”,此时阀门进入保压测试阶段。也可通过观察“下盲板气压表”的掉压情况判断阀门壳体的泄露。

阀门液压测试台阀门液压测试台

2.液体阀门强度试压

将“水泵开关”开启,水泵指示灯亮,低压水泵工作;将被测阀门半开,开启控制模块上“下盲板进水阀”,低压水进入阀门,待其充满后,可观察到“水压增压表”指示在1MPa位置;按阀门规格选定高压水的压力值,调节电接点压力表即“水压增压表”到该值,开启“增压进气开关”,气液增压泵开始工作,当压力值到达设定值后,增压泵停止工作,关闭“增压进气开关”,关闭控制模块上“下盲板进水阀”,此时进入阀门保压测试阶段。

测试完成后,开启试压下盲板座上的排水阀,在上盲板座通入压缩空气,将试压液体吹出阀门。

3.阀门强度试压机的电器部分操作说明:

1. 油泵控制:按“油泵启动”按钮,油泵运行;按“油泵停止”按钮,油泵停止运行。


2. 横移油缸控制:按“移出”按钮,横移油缸伸出,触碰到接近开关XL01后,横移油缸停止运动;按“移进”按钮,横移油缸缩回,触碰到接近开关XL02后,横移油缸停止运动;无论何时,按“停止”按钮,横移油缸立即停止运动。


3. 压紧油缸控制:同时按右上角“压紧”按钮和左下角“压紧”按钮,压紧油缸伸出。按“松开”按钮压紧油缸缩回。无论何时,按“停止”压紧油缸立即停止运动,按下任意一个“压紧”按钮,压紧缸都不得动作。


4. 工作台压紧时,按“工作台移进/工作台移出”按钮,横移油缸不能动作。


5. 照明和离心泵开关为复合开关,即按下工作,再按下则停止工作。


6. 急停开关按下时,须关闭电源,切断所有液压、水、气,包括液压泵、水泵、气控电磁阀等。


7. 阀门强度试压机系统报警处理:当滤油器堵塞时,滤油器报警指示红灯亮,提示需更换滤芯。当油箱油位过高或过低时,油位高指示灯亮,油泵不能启动。

4.阀门强度试压抽样检验

设计压力≤1MPa且设计温度为≤-29℃或>186℃的非可燃介质、无毒介质用阀门,应从每批抽10%且不少于一个,进行液体压力试验,当不合格时,应再抽查20%,仍有不合格时,则该批阀门不得使用。

公称压力<1MPa且公称直径≥600mm的闸阀,可不单独进行液体压力试验,可在系统试压时进行检查。

阀门液压测试台

相关标签: 阀门试压机

移动端网站