0577-67988558

产品中心

PRODUCT DISPLAY

联系方式 / CONTACT

地址:浙江省永嘉县瓯北镇东瓯泵阀园区 手机:0577-67988558 手机:15958793562 陈总 邮箱:2569887415@qq.com

罗浮阀门集团浙江西高泵阀有限公司

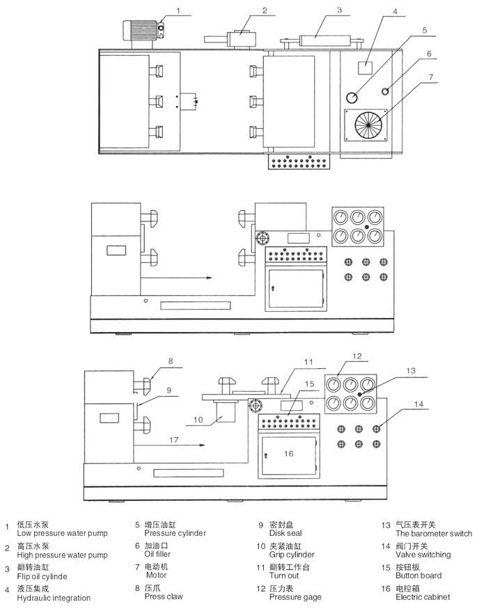
双翻阀门液压测试台YFA-F型

产品参数

双翻阀门液压测试台适用于闸阀、截止阀、球阀、调节阀、止回阀等直通式法兰联接阀门的阀门密封试压机和阀体强度性能测试,以及安全阀起跳压力整定。双翻阀门液压测试台夹紧形式为抱压,抱压爪夹紧法兰,对试验阀门无外力影响。试验介质为水、气、油,由客户自选。阀门试验台一端工作台可移动,试压时可随阀门长度调整停留位置。其中一端工作台可翻转90°,进行阀门试验。


阀门液压测试台


双翻阀门液压测试台参照ISO5028《工业用阀门的压力试验》、GB/T13927-92《通用阀门 压力试验》设计制造,并充分吸收国外同类产品的优点,使其不断改进和优化。双翻阀门液压测试台主要用于新阀门上线前和旧阀门修复后的各项密封性能的测试。这些测试包括高压密封性能测试、低压密封性能测试、上密封性能测试、阀体强度测试及安全阀起跳压力整定等。

阀门液压测试台的外形结构示意图:

阀门液压测试台

双翻阀门液压测试台工作原理及结构

双翻阀门液压测试台采用以阀门法兰端面定位,活动反爪夹紧法兰背面的装夹方法进行工作。对被测阀门无附加影响测试结果的外力,符合标准规定的阀门测试要求。

阀门液压测试台阀门液压测试台

双翻阀门液压测试台结构大致可分为液压系统、电器控制系统、左右工作台活动夹爪和液动供压装置及介质循环系统等部件组成。右边工作台设有夹紧机构和 90度翻转机构,夹紧机构由夹爪的夹紧装置和径向移动装置组成,夹爪的夹紧装置是采用各油缸直接驱动来实现,使各爪受力均匀,夹紧可靠。夹爪的径向移动装置是采用杠杆式结构,实现了各爪径向同步移动。左边工作台可自动进退。

双翻阀门液压测试台具有性能好,结构简单紧凑等特点。液压电器控制系统 (详见液压和电器原理图)安装在底层固定架内,是测试台的控制部分,在与电器联合控制下使各机构能协调动作,满足双翻阀门液压测试要求。

阀门液压测试台

相关标签: 阀门液压测试台

移动端网站